Продажа помещения свободного назначения

Кемеровская область — Кузбасс, посёлок городского типа Шерегеш, Олимпийская улица, 9А

125 000 000 ₽

181 160 ₽ за м²

690 м²
Площадь
1
Этаж

Поделиться

Добавить в избранное

Ваше личное место силы и бесспорно надежная, выгодная инвестиция, работающая круглый год (семь месяцев горнолыжка, пять горный туризм и отдых на природе)
Генерите денежный поток от счастливых отдыхающих людей и приезжайте сюда с друзьями сами!
Технология Post & Beam. Готoвый кeдpoвый cруб заводского хранения (КРУПНОМЕР-бревна от 42 см и выше ) Стильный проект в сказочном месте
Один из самых длинных сезонов горнолыжки в России. Знаковый, молодежный, яркий курорт с большим потенциалом ! Уникальный снег пухляк; кто знает - тот ценит!
Первая линия застройки- буквально в нескольких минутах от самого короткого подъемника
ВНИМАНИЕ-выкат прямо к дому!!
Земельный учаcток pаcполoжен в самoм пoпулярнoм и вoстpeбованнoм местe гoрнолыжнoгo куpoрта Шерегеш. Гора Зелёная, сeктop А
Превосходный вид .Рядом ресторан. Лучшее место для гостиницы, шале или центра активного отдыхав этой локации.
Назначение земельного участка: категория-земли населённых пунктов, разрешённое использование-для размещения объектов рекреационного назначения и ведения рекреационной деятельности
Полный пакет документов: градостроительный план, разрешение на строительство, проектная документация, оформленные договора на технологическое присоединение: электроснабжение (мощность 249 кВт, канализация, холодное водоснабжение
Дорога согласована, завезён гравий для обустройства дороги, площадки под фундамент и парковки, имеется подрядчики готовый выполнить бетонные работы.
Готовый кедровый сруб , диаметр бревна от 42 см и выше, полностью высушен, хранится на заводе в Красноярске , в комплекте стропильная система. Автор сруба берёт на себя работы по его доставке и монтажу !!!
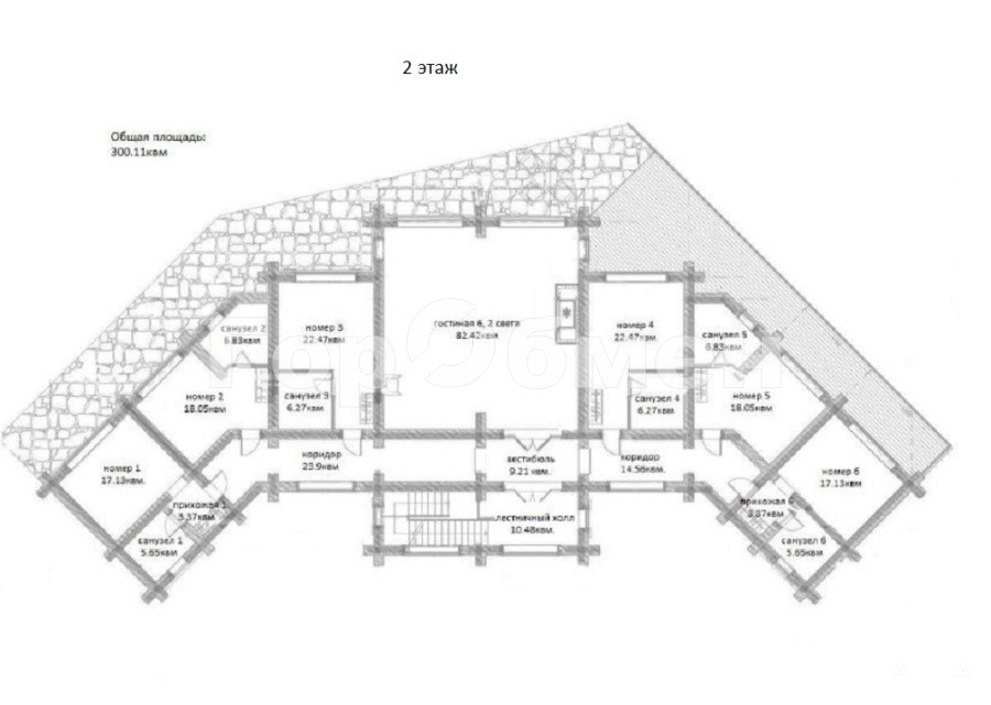
Параметры гостиничного комплекса: Общая площадь: 686, 48 м², площадь застройки: 600 м², вместимость: 14 человек, 2 парковочных места.
1 этаж: Кухня- бар, кинозал, Сауна и массажная, винный погреб, постирочная, морозильная и холодильная камеры, сушилка для лыжного инвентаря
кладовая для хоз. нужд и оборудования, техническое помещение, кабинет администратора
2 этаж: 7 номеров, каждый со своим санузлом, Общая зона отдыха с камином.
Продаем или ищем соинвесторов ! Есть три экономические модели окупаемости.

Дата обновления: 24 октября 2025