Аренда торговой площади

319 950 ₽/мес

1 350 ₽ за м²/мес.

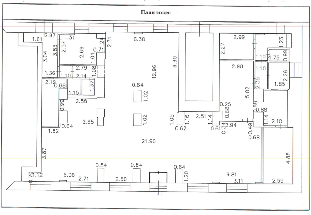
237 м²
Площадь
3 м
Высота потолка
80 кВт
Энергетическая мощность
1/4
Этаж

Поделиться

Добавить в избранное

Помещение свободного назначения
Общая площадь помещения 237, 4 м2
Мощность эл. сетей = 80 кВт, Высота потолка – 3м.
Имеет отдельный центральный вход, витражное остекление.

Объект обеспечен всеми видами коммунальных услуг с возможностью перехода на прямые договора, а также оборудован вентиляцией

Объект расположен на первом этаже многоквартирного дома, 1-ая линия улицы города Кемерово – ул. Ноградская, д.34
Преимущества расположения объекта:
• транспортная и пешеходная доступность
• наличие парковочных мест и общественной остановки
• Высоких пешеходный трафик прямо перед витринами помещения
• имеет благоустроенную прилегающую территорию.
• самый центр города, рядом с площадью советов

Дата обновления: 15 января 2026